Premarco puerta corredera una hoja Scrigno Techzero enfoscado
Techzero introduce nuevos conceptos tanto en el producto así como en la instalación, expresamente dedicados a un publico profesional.
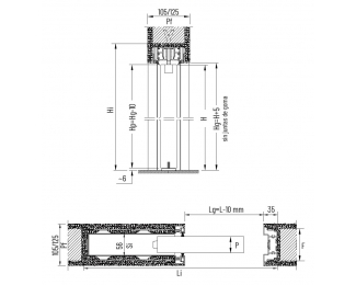
Los perfiles de aluminio permiten una perfecta instalación, evitando imperfecciones y grietas.
El sistema de deslizamiento tiene una garantía de 10 años y cuenta con una capacidad de carga total de 120 kg.
Los perfiles de aluminio permiten una perfecta instalación, evitando imperfecciones y grietas.
El sistema de deslizamiento tiene una garantía de 10 años y cuenta con una capacidad de carga total de 120 kg.
Altura 2100
| Luz de paso mm | Luz sin jambas mm | Dimensiones totales mm | Tamaño hoja mm | Pared acabada mm | Grosor pared de soporte mm | Hueco interior mm | Espesor máx. hoja mm | ||||
|---|---|---|---|---|---|---|---|---|---|---|---|
| L | H | Lg | Hg | Li | Hi | Lp | Hp | Pf | F/0 | Si | P |
| 600 | 2100 | 590 | 2105 | 1280 | 2170 | 615 | Hg*+ -10 mm | 105i 125i 100c 125c - 2L |
ladrillo hueco 80 ladrillo hueco 100 perfilería 75 perfilería 75 |
56 | 40 |
| 700 | 690 | 1480 | 715 | ||||||||
| 800 | 790 | 1680 | 815 | ||||||||
| 900 | 890 | 1880 | 915 | ||||||||
| 1000 | 990 | 2080 | 1015 | ||||||||
* medida a lo alto tomada desde el travesaño sin junta hasta el suelo terminado (si el premarco se coloca a nivel del suelo terminado: Hg*= Hg)
Altura 2400
| Luz de paso mm | Luz sin jambas mm | Dimensiones totales mm | Tamaño hoja mm | Pared acabada mm | Grosor pared de soporte mm | Hueco interior mm | Espesor máx. hoja mm | ||||
|---|---|---|---|---|---|---|---|---|---|---|---|
| L | H | Lg | Hg | Li | Hi | Lp | Hp | Pf | F/0 | Si | P |
| 600 | 2400 | 590 | 2405 | 1280 | 2470 | 615 | Hg*+ -10 mm | 105i 125i 125c - 2L |
ladrillo hueco 80 ladrillo hueco 100 perfilería 75 |
56 | 40 |
| 700 | 690 | 1480 | 715 | ||||||||
| 800 | 790 | 1680 | 815 | ||||||||
| 900 | 890 | 1880 | 915 | ||||||||
| 1000 | 990 | 2080 | 1015 | ||||||||
* medida a lo alto tomada desde el travesaño sin junta hasta el suelo terminado (si el premarco se coloca a nivel del suelo terminado: Hg*= Hg)
Descargas
Referencias
- Código Sasmak
- 9650
- Código de barras
- 1800001329044
-
Frecuentemente comprados juntos
-
Productos de la misma categoría
Opiniones
No hay comentarios
Inicia sesión primero.
Registrarse
Descargar (2.62M)